• 索引號:yyxzfbgs/2025-2270189
  • 統一登記號:YYDR—2025—00001
  • 發布機構:縣政府辦公室
  • 信息狀態:
  • 生效日期:2025-01-23
  • 信息時效期:2030-01-23
  • 公開方式:政府網站
  • 公開範圍:全部公開
  • 文號:嶽縣政通〔2025〕1號
嶽陽縣人民政府關於劃定嶽陽縣七處烈士紀念設施保護範圍的通告
來源:縣政府辦公室   2025-01-23
瀏覽量:1 | | | |

  根據《烈士褒揚條例》《烈士紀念設施保護管理辦法》等有關規定,現劃定嶽陽縣七處烈士紀念設施保護範圍如下。

  一、大雲山烈士紀念園

  地址:大雲山國家森林公園內;

  保護級別:未定級;

  保護範圍:以大雲山烈士紀念園四周護欄為界,包含入園台階。保護範圍的麵積為565.17平方米。(詳見附件1)

  二、大雲山烈士紀念塔

  地址:大雲山國家森林公園內;

  保護級別:未定級;

  保護範圍:以大雲山烈士紀念塔四周護欄為界。保護範圍的麵積為598.10平方米。(詳見附件2)

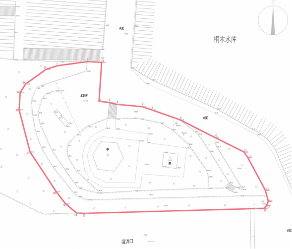
  三、張穀英鎮烈士紀念園

  地址:張穀英鎮天龍村桐木水庫東山麓;

  保護級別:未定級;

  保護範圍:東北側、東側以桐木水庫大壩為界,南側以桐木水庫溢洪道為界,西北側、西側以山麓為界。保護範圍的麵積為1223.9平方米。(詳見附件3)

  四、月田鎮皇帽山烈士紀念園

  地址:月田鎮花苗村皇帽山;

  保護級別:未定級;

  保護範圍:以月田鎮皇帽山烈士紀念園勘測定界圖劃定的紅線為準。保護範圍的麵積為612.2平方米。(詳見附件4)

  五、公田鎮板橋烈士紀念園

  地址:公田鎮大塅村;

  保護級別:未定級;

  保護範圍:以公田鎮板橋烈士紀念園勘測定界圖劃定的紅線圖為準。保護範圍的麵積為172.36平方米。(詳見附件5)

  六、楊林街鎮藍澤烈士墓

  地址:楊林街鎮蘭澤村;

  保護級別:未定級;

  保護範圍:東北側、東南側、西北側以楊林街鎮藍澤烈士墓圍牆為界,西南側以037縣道為界。保護範圍的麵積為1743平方米。(詳見附件6)

  七、黃沙街鎮劉士奇烈士紀念園

  地址:黃沙街鎮劉士奇村;

  保護級別:未定級;

  保護範圍:以黃沙街鎮劉士奇烈士紀念園勘測定界圖劃定的紅線為準。保護範圍的麵積為3244.1平方米。(詳見附件7)

  八、保護要求

  烈士紀念設施保護範圍內的土地和設施受法律保護,任何組織和個人不得在烈士紀念設施保護範圍內從事與紀念英烈無關或者有損紀念英烈環境和氛圍的活動,不得侵占烈士紀念設施保護範圍內的土地和設施,不得破壞、汙損烈士紀念設施,不得在烈士紀念設施保護範圍內進行其他工程建設。

  非法侵占烈士紀念設施保護範圍內的土地、設施,破壞、汙損烈士紀念設施,或者在烈士紀念設施保護範圍內進行其他工程建設,或者在烈士紀念設施保護範圍內為不符合安葬條件的人員修建紀念設施、安葬或安放骨灰或者遺體的,由縣退役軍人事務局責令改正,恢複原狀、原貌;造成損失的,依法承擔民事責任;被侵占、破壞、汙損的紀念設施屬於文物保護單位的,依照《中華人民共和國文物保護法》的規定處罰;構成違反治安管理行為的,由公安機關依法給予治安管理處罰;涉嫌犯罪的,移送司法機關處理。

  附件:1.大雲山烈士紀念園保護範圍示意圖

  2.大雲山烈士紀念塔保護範圍示意圖

  3.張穀英鎮烈士紀念園保護範圍示意圖

  4.月田鎮皇帽山烈士紀念園保護範圍示意圖

  5.公田鎮板橋烈士紀念園保護範圍示意圖

  6.楊林街鎮藍澤烈士墓保護範圍示意圖

  7.黃沙街鎮劉士奇烈士紀念園保護範圍示意圖 



  嶽陽縣人民政府

  2025年1月23日

  (此件主動公開)

  附件1

  大雲山烈士紀念園保護範圍示意圖

:大雲山烈士紀念園保護範圍

  附件2

  大雲山烈士紀念塔保護範圍示意圖

  :大雲山烈士紀念塔保護範圍

  附件3

  張穀英鎮烈士紀念園保護範圍示意圖

:張穀英鎮烈士紀念園保護範圍

  附件4

  月田鎮皇帽山烈士紀念園保護範圍示意圖

:月田鎮皇帽山烈士紀念園保護範圍

  附件5

  公田鎮板橋烈士紀念園保護範圍示意圖

:公田鎮板橋烈士紀念園保護範圍

  附件6

  楊林街鎮藍澤烈士墓保護範圍示意圖

:楊林街鎮藍澤烈士墓保護範圍

  附件7

  黃沙街鎮劉士奇烈士紀念園保護範圍示意圖

:黃沙街鎮劉士奇烈士紀念園保護範圍